行业知识

你见过哪些类型的流量计孔板

2024-12-25 12:00:47 爱体育在线注册,爱体育(中国)

你见过哪些类型的流量计孔板

‌1、同心孔板‌:最常见的孔板类型,是一种标准的流量测量装置,通常由不锈钢制成,厚度从1/8到1/2英寸不等,具体取决于管道尺寸。它的孔径与管道内径等距,广泛应用于清洁、均质的液体、气体、蒸汽和非粘性流体的流量测量。同心孔板具有高精度和易于安装的特点。

图片关键词

2‌、偏心孔板‌:其设计特点在于孔板的节流孔与管道轴线不同心,通常与管道内壁的某个部位(如顶部或底部)相切。这种设计使得偏心孔板在测量过程中能够有效避免介质中的固体颗粒或沉淀物在孔板前后积聚,从而减少堵塞的风险,并保持测量精度。适合测量含悬浮固体颗粒的流体。偏心孔板的β比值(开孔直径比)通常在0.46至0.84之间,适用于雷诺数较低的流体。

图片关键词

3‌、四分之一圆孔板‌:这种孔板的入口边缘被裁剪成四分之一圆形,其设计和使用符合英国标准BS1042,但不符合ISO5167标准。适用于低雷诺数流体的测量,如重质原油、糖浆和浆料等高粘度流体。其测量流量的下限比标准孔板要低,但上限不如标准孔板高。四分之一圆孔板的开孔直径d应≥15mm,开孔直径比β应在0.245至0.6之间。

图片关键词

4、锥形入口孔板:锥形入口孔板的入口边缘为45°圆锥面,锥形入口孔板的设计优化了流速曲线,减少了湍流强度对流量系数的影响。这种设计使其能够在雷诺数非常低的情况下进行流量测量,但其上限流量不如标准孔板高,因此在高雷诺数条件下可能不适合使用。

‌5、内藏孔板‌:内藏孔板通常采用一体化设计,将孔板与测量管集成在一起,适用于小管径(DN≤50mm)的流量测量。这种设计不仅简化了安装过程,还减少了泄漏点,提高了整体的可靠性,适用于小管径的应用场景。

图片关键词

6‌、圆缺孔板‌:圆缺孔板是一种用于测量脏污介质流量的节流装置,其开孔为圆的一部分(圆缺部分),这种设计可以避免脏物在孔板前后堆积,从而提高测量精度和可靠性。圆缺孔板适用于水平或倾斜管道,不适用于垂直管道。在含有固体颗粒的流体中,缺口应置于下方;而在液体中有气体析出时,缺口应置于上方。圆缺孔板主要适用于中小流量测量,尤其在对压降要求较低的场合下使用。

图片关键词

‌7、环室孔板‌:环室孔板采用“均压环”结构,直管段长度要求短,这使得其在安装时对误差的敏感度较低,减少了测量误差来源。环室孔板的设计可彻底吹扫,无滞留区,避免了冷凝水堆积的问题。相比标准孔板,环室孔板在大流量测量中表现更佳。

图片关键词

8、双重孔板‌:双重孔板由两块标准孔板组成,其中上游孔板称为辅助孔板,下游孔板为主孔板。辅助孔板的开孔直径通常大于主孔板,这样设计是为了形成类似带液壁的喷咀结构。这种设计使得双重孔板适用于低雷诺数流体或高粘度流体的流量测量,其测量流量下限低于标准孔板,上限限制高于标准孔板,同时压力损失小于标准孔板但大于喷嘴。0.3≤β≤0.75

图片关键词

9、限流孔板:是一种用于限制流体流量或降低流体压力的管道组件,广泛应用于各种工业领域。其基本原理是通过限制流体通过孔板的流量来达到控制流量和降低压力的目的。当流体通过限流孔板时,会产生一定的压力降,而这种压力降随着流量的增加而增大。然而,当压力降超过某一临界值时,流量将维持在一个恒定值,不再随压力降的进一步增加而变化。

图片关键词

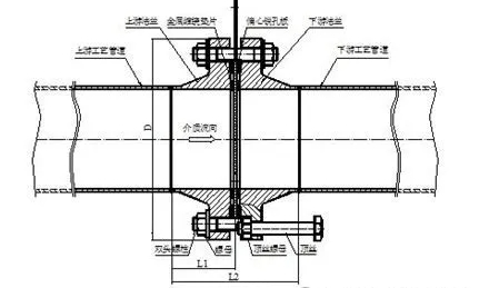
法兰连接式单级限流孔板安装结构

首页
产品
新闻
联系